Capannone in vendita

Calenzano, Via Pietro Aretino
€ 600.000
8 locali 8 locali
544 Mq 544 Mq
4 bagni 4 bagni

Capannone in vendita

Calenzano, Via Pietro Aretino

Descrizione annuncio

Calenzano: un'opportunità unica per imprenditori e famiglie. Immobile terracielo composto da immobile produttivo e abitativo.

Sei alla ricerca di una soluzione che unisca la tua attività e la tua vita familiare in un'unica, strategica location? Questo immobile indipendente su quattro lati a Calenzano è l'opportunità che stavi aspettando. Riconosciuto per la sua eccellente qualità della vita e la sua posizione invidiabile nel cuore della Toscana, Calenzano offre il perfetto equilibrio tra efficienza aziendale e benessere residenziale.

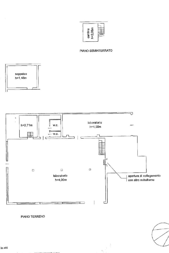
Un hub strategico per il business: Calenzano si distingue per la sua posizione logistica cruciale, a un passo dall'autostrada A1 (uscita Calenzano/Sesto Fiorentino), che garantisce collegamenti rapidi e facili con i principali centri economici del Nord e Sud Italia. Questa connettività rende l'immobile ideale per aziende che necessitano di una base operativa facilmente raggiungibile e ben collegata. Il piano terreno offre un ampio laboratorio (superficie commerciale: 311 mq) con più accessi carrabili e pedonali, pensato per ottimizzare ogni tipo di attività produttiva, artigianale o logistica. Un piazzale privato aggiunge un valore inestimabile per la movimentazione merci, il parcheggio o come spazio di manovra. Inoltre, l'ampio garage (superficie commerciale: 21 mq), anch'esso con accesso autonomo, rappresenta una soluzione versatile: può fungere da ulteriore magazzino, da reparto aggiuntivo al laboratorio o da sicuro ricovero per mezzi e attrezzature.

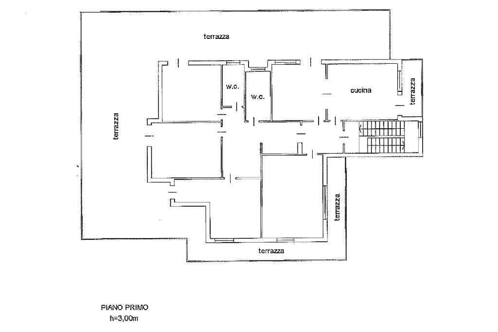
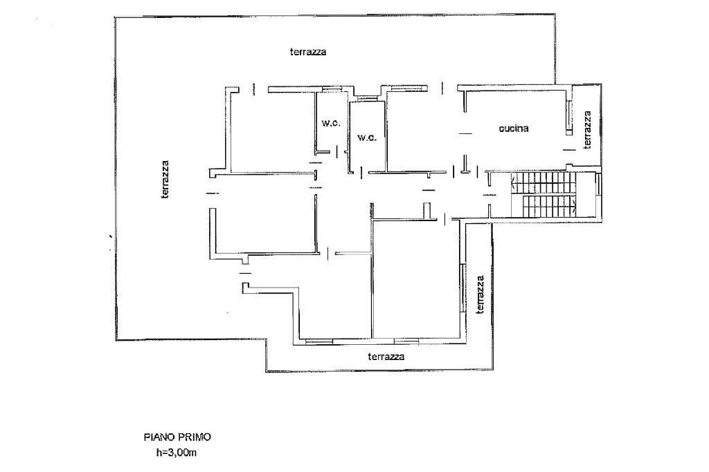
Vivere Calenzano: Qualità e Comodità a Portata di Mano: Ma Calenzano non è solo affari. È un comune che vanta una riconosciuta alta qualità della vita, con un'attenzione particolare ai servizi per i cittadini, alle aree verdi e a una forte coesione sociale. Questo lo rende un luogo ideale dove far crescere la propria famiglia, con scuole di qualità, attività ricreative e una ricca offerta culturale. L'ampio appartamento al piano primo (superficie commerciale: 212 mq), con il suo accesso completamente indipendente, offre un rifugio privato e sereno. Spazioso e luminoso, è impreziosito da un grande terrazzo che si presta a momenti di relax all'aria aperta, pranzi estivi o semplicemente per godere della tranquillità del contesto.

Non lasciarti sfuggire questa rara opportunità a Calenzano. Contattaci subito per scoprire tutti i dettagli e fissare la tua visita. La tua prossima sede operativa e la tua nuova casa ti aspettano!

DISCLAIMER - SCARICO DI RESPONSABILITA'

Il presente annuncio e le informazioni ivi contenute non costituiscono vincolo contrattuale. Gli annunci, nonostante la nostra accuratezza, possono presentare inesattezze, errori, omissioni e/o altre incongruenze dovute a software, gestionali, intelligenza artificiale e altre dinamiche di inserimento e lettura dati. Le fotografie potrebbero essere immagini di repertorio, modificate dall'intelligenza artificiale o non rappresentative della realtà.

Mostra tutto

Nelle vicinanze

Trasporto pubblico Trasporto pubblico
stazione di Sesto Fiorentino
stazione di Sesto Fiorentino
2,1 Km
Settimello
Settimello
140 m
Calenzano Giovanni XXIII
Calenzano Giovanni XXIII
150 m
stazione di Il Neto
stazione di Il Neto
1,2 Km
Pratignone
Pratignone
1,4 Km
Ricariche auto elettriche Ricariche auto elettriche
Calenzano A.S.D. Settimello | EnelX
500 m
Officina Bi Auto | EnelX
550 m
Calenzano Cherzani | EnelX
1,1 Km
Estra Stazione FS Sesto Fiorentino
2,1 Km
Estra Comune di Sesto Fiorentino
2,6 Km
Scuole Scuole
Design Campus
1,6 Km
Residenza Margherita Hack
1,6 Km
Scuole Pubbliche Media Inferiore Cavalcanti
1,9 Km
Scuole
2,4 Km
Scuola Elementare De Amicis
2,4 Km
Farmacia Farmacia
Farmacia Comunale 4
950 m
Parafarmacia E' Qui
1,2 Km
Farmacia Comunale 7
1,6 Km
Farmacia Comunale 5
1,6 Km
Balducci
2,0 Km
Ospedali Ospedali
Ospedali
2,1 Km
Azienda Usl 10 Di Firenze
2,9 Km
Supermercati Supermercati
Penny Market
350 m
Unicoop Neto
940 m
Carrefour Calenzano
1,2 Km
Incoop
1,5 Km
Conad
1,7 Km
Negozi Negozi
Starbene Senza Glutine
510 m
Nencini Sport 2
890 m
Negozi
910 m
Nencini Sport 5
990 m
Forno Conti
2,0 Km
Bar Bar
Asd Factory
930 m
Bar Vannino
960 m
Bar la siesta
1,1 Km
TIME - Lounge Bar Pizzeria 2.0
1,2 Km
Cycle Club
1,5 Km
Ristoranti Ristoranti
Nottedì
270 m
1950 American Diner
430 m
Stargate Lasergame
820 m
Ristoranti
1,3 Km
Ristorante Bar Pizzeria Sarzolo Turano Snc Di Turano Raffaele & C.
1,5 Km
Mostra tutto

Caratteristiche

Rif.:
61109396
Piano:
Terra di 2
Totale piani:
2
Box:
1
Balconi:
1
Condizionamento:
Autonomo
Mostra tutto
Prezzo Prezzo
€ 600.000
Rata mutuo Rata mutuo
€ 2.773 / mese
Spese annue Spese annue
€ 0
Proponi il tuo prezzoProponi il tuo prezzo

Altre caratteristiche

Descrizione dei locali
Bagno Con Finestra

Classe Energetica

G
G
G
G
G
G
G
G
G
EP globale non rinnovabile:
175.00 kW h/m² anno
EP globale rinnovabile:
175.00 kW h/m² anno
EP invernale del fabbricato:
EP estiva del fabbricato:
Anno di costruzione:
1960
Riscaldamento:
Autonomo
Tipo impianto:
A radiatori
Tipo alimentazione:
Altro

Ti interessa visionare l'immobile?

Fissa un appuntamento  Fissa un appuntamento

Richiedi informazioni

* Questi campi sono obbligatori

Calcola il tuo mutuo

Semplice e senza impegno
Anticipo

( % )
Mutuo

( % )

pochi semplici passi

inserisci i tuoi dati
Questionario completato
Grazie per aver richiesto un appuntamento senza impegno con un nostro Consulente del Credito e Assicurativo.

Hai inserito correttamente tutti i dati necessari e a breve riceverai una e-mail con un link da convalidare per inviare i tuoi dati.
Affiliato
Impresa Firenze Nord Srl
Via Reginaldo Giuliani, 55 50141 Firenze (FI)

Il nostro staff


  • Marco Quercioli
    Affiliato

  • Irene Denoth
    Responsabile

  • Martina Fabiani
    Coordinatrice

  • Alessio Sandroni
    Collaboratore

  • Pietro Villani
    Collaboratore
Via Reginaldo Giuliani, 55 50141 Firenze (FI)
Zona: Firenze Nord
Mostra su mappa
Orari: lunedì-venerdì 09:00-13:00 e 15:30-20:00 - sabato 09:00-13:00
Affiliato
Impresa Firenze Nord Srl
Via Reginaldo Giuliani, 55 50141 Firenze (FI)

2025 Tecnocasa Franchising S.p.A. - P. IVA 08365160152 - Via Monte Bianco 60/A 20089 Rozzano (MI). Ogni agenzia ha un proprio titolare ed è autonoma. Privacy policy | Policy utilizzo | Cookie policy