Laboratorio in vendita

Campi Bisenzio, Via Barberinese
€ 250.000
9 locali 9 locali
180 Mq 180 Mq
3 bagni 3 bagni

Laboratorio in vendita

Campi Bisenzio, Via Barberinese

Descrizione annuncio

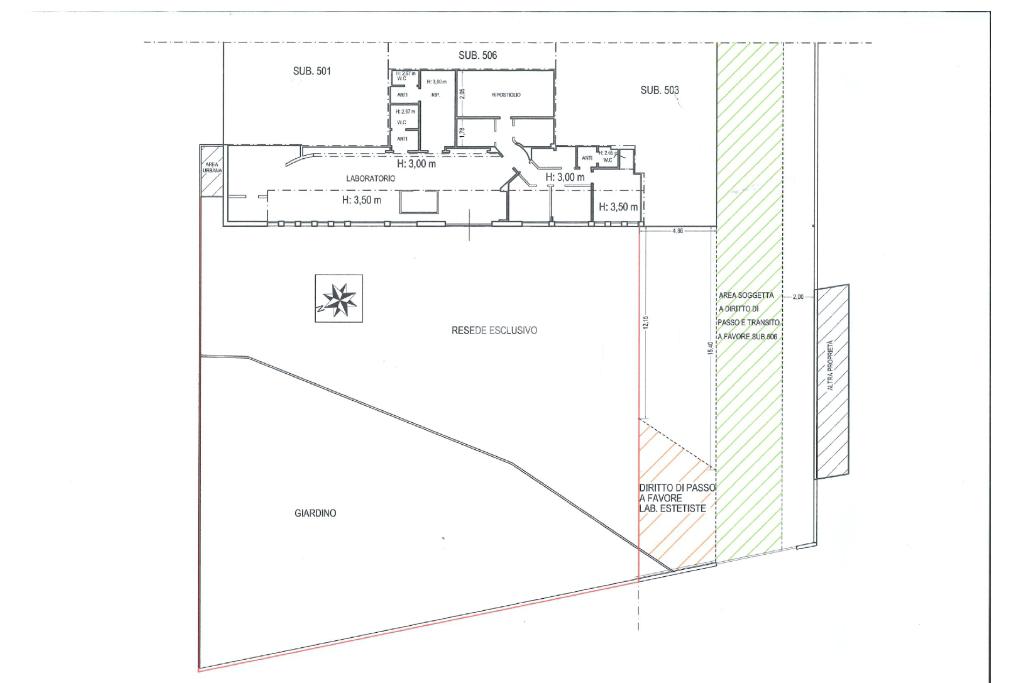
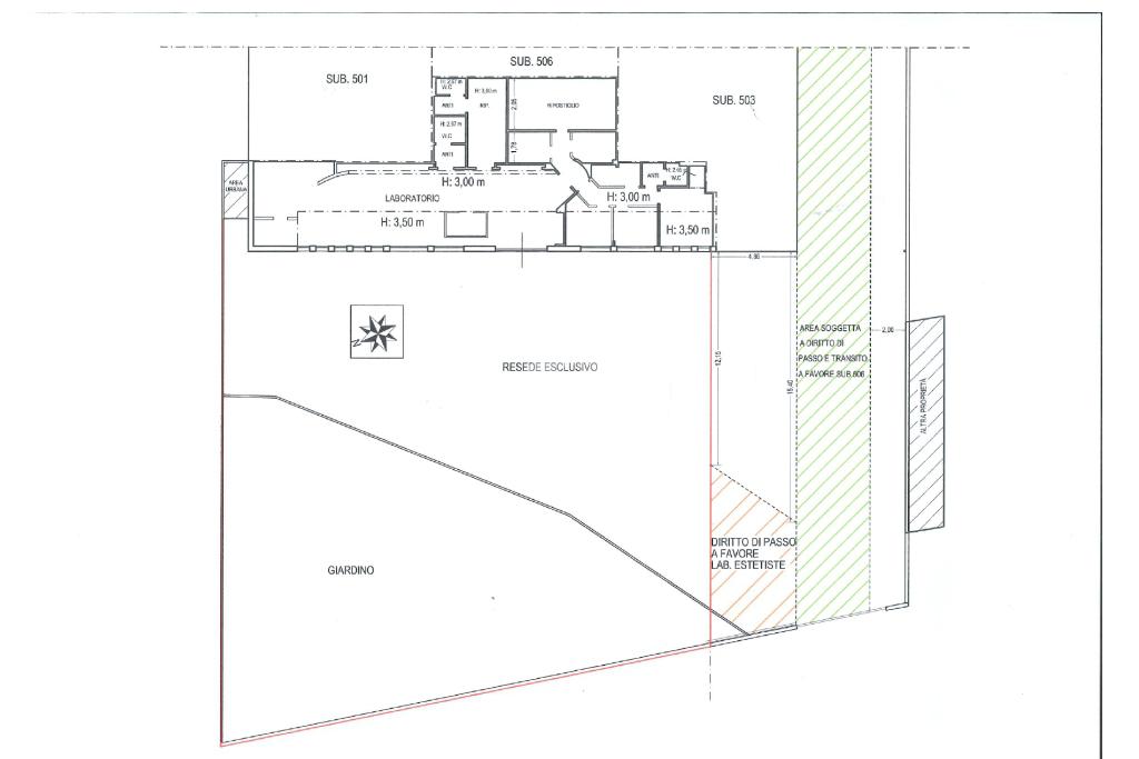
Campi Bisenzio, zona Indicatore, proponiamo in vendita un laboratorio di circa 180 mq.

L’immobile è situato in posizione strategica, lungo una strada principale ad alto scorrimento veicolare, e dispone di accesso tramite cancello automatico.

L’intera superficie si sviluppa al piano terra ed è attualmente suddivisa in più ambienti interni, con la possibilità di essere facilmente riconfigurata in base alle specifiche esigenze. La proprietà è inoltre dotata di tre servizi igienici, ciascuno provvisto di antibagno.

All’esterno è presente un piazzale di circa 480 mq ad uso esclusivo, ideale per operazioni di carico e scarico merci o da adibire a parcheggio privato.

La struttura si presta a molteplici utilizzi quali attività di servizio alla persona, artigianali o produttive, studi professionali, oppure come deposito.

Categoria catastale: C/3

DISCLAIMER

Il presente annuncio e le informazioni ivi contenute non costituiscono vincolo contrattuale. Gli annunci, nonostante la nostra accuratezza, possono presentare inesattezze, errori, omissioni e/o altre incongruenze dovute a software, gestionali, intelligenza artificiale e altre dinamiche di inserimento e lettura dati.

Ai sensi del vigente Regolamento Europeo GDPR, in materia di privacy, alcuni dati sono censurati, parzialmente o totalmente, o non rappresentativi della realtà.

Le fotografie potrebbero essere immagini di repertorio.

Per avere maggiori informazioni circa documentazione, geoposizionamento, situazione di fatto e di diritto, specifiche contrattuali o altro vi invitiamo a fissare un appuntamento presso le nostre agenzie.

Tecnocasa immobili per l'impresa è la divisione specializzata nella vendita e nella locazione di negozi, uffici, capannoni e attività commerciali: se intendi vendere, locare o ricercare un immobile del genere contattaci: siamo il punto di riferimento nel settore non abitativo.

Grazie a Kiron SpA, società di mediazione creditizia del Gruppo Tecnocasa, abbiamo convenzioni con decine di istituti bancari italiani e siamo in grado di aiutarti nella ricerca del mutuo più adatto alle tue esigenze

Mostra tutto

Nelle vicinanze

Trasporto pubblico Trasporto pubblico
Barberinese Sn
Barberinese Sn
150 m
Carraia
Carraia
150 m
Ricariche auto elettriche Ricariche auto elettriche
Concessionaria Mercedes-Benz | EnelX
2,5 Km
Scuole Scuole
Scuola dell'infanzia San Giusto
1,3 Km
Scuola Primaria Lorenzo il Magnifico
1,6 Km
Scuola Primaria Fra Ristoro
2,0 Km
Scuola Materna Lorenzini
2,3 Km
Scuola Media Statale Felice Matteucci
2,3 Km
Farmacia Farmacia
Farmacia Cottino
360 m
Farmacia San Martino
1,7 Km
E. Rossi
2,0 Km
Comunale 3
2,1 Km
Giglioli
2,2 Km
Ospedali Ospedali
Azienda USL Toscana centro - distretto Campi Bisenzio
2,4 Km
Supermercati Supermercati
Penny Market
1,5 Km
Esselunga di Campi Bisenzio
1,5 Km
Lidl
2,1 Km
Coop
2,3 Km
Negozi Negozi
La Focaccia
2,0 Km
United Colors of Benetton
2,1 Km
Estranea Store
2,1 Km
Penny Market
2,9 Km
Bar Bar
Circolo MCL il Gorinello
630 m
hidron
1,4 Km
La Dolceria
2,1 Km
Bar Giacomelli Simone & C.
2,4 Km
sexy bar
2,7 Km
Ristoranti Ristoranti
Meryanna
1,9 Km
L'intingolo
2,0 Km
Self Service La forchetta
2,1 Km
La Tana dei Ghiotti
2,1 Km
Bella vita
2,1 Km
Mostra tutto

Caratteristiche

Rif.:
61104015
Piano:
Terra
Condizionamento:
Autonomo
Ascensore:
No
Riscaldamento:
Autonomo
Libero:
Mostra tutto
Prezzo Prezzo
€ 250.000
Rata mutuo Rata mutuo
€ 1.156 / mese
Spese annue Spese annue
€ 0
Proponi il tuo prezzoProponi il tuo prezzo

Altre caratteristiche

Descrizione dei locali
Bagno Cieco

Classe Energetica

G
G
G
G
G
G
G
G
G
EP globale non rinnovabile:
175.00 kW h/m² anno
EP globale rinnovabile:
175.00 kW h/m² anno
EP invernale del fabbricato:
EP estiva del fabbricato:
Anno di costruzione:
1960
Riscaldamento:
Autonomo
Tipo impianto:
Ad aria
Tipo alimentazione:
Aria

Ti interessa visionare l'immobile?

Fissa un appuntamento  Fissa un appuntamento

Richiedi informazioni

* Questi campi sono obbligatori

Calcola il tuo mutuo

Semplice e senza impegno
Anticipo

( % )
Mutuo

( % )

pochi semplici passi

inserisci i tuoi dati
Questionario completato
Grazie per aver richiesto un appuntamento senza impegno con un nostro Consulente del Credito e Assicurativo.

Hai inserito correttamente tutti i dati necessari e a breve riceverai una e-mail con un link da convalidare per inviare i tuoi dati.
Affiliato
Impresa Firenze Nord Srl
Via Reginaldo Giuliani, 55 50141 Firenze (FI)

Il nostro staff


  • Marco Quercioli
    Affiliato

  • Irene Denoth
    Responsabile

  • Martina Fabiani
    Coordinatrice

  • Alessio Sandroni
    Collaboratore

  • Pietro Villani
    Collaboratore
Via Reginaldo Giuliani, 55 50141 Firenze (FI)
Zona: Firenze Nord
Mostra su mappa
Orari: lunedì-venerdì 09:00-13:00 e 15:30-20:00 - sabato 09:00-13:00
Affiliato
Impresa Firenze Nord Srl
Via Reginaldo Giuliani, 55 50141 Firenze (FI)

2025 Tecnocasa Franchising S.p.A. - P. IVA 08365160152 - Via Monte Bianco 60/A 20089 Rozzano (MI). Ogni agenzia ha un proprio titolare ed è autonoma. Privacy policy | Policy utilizzo | Cookie policy