Complesso in vendita

Firenze, Via di Brozzi - Quaracchi
€ 795.000
16 locali 16 locali
632 Mq 632 Mq
5 bagni 5 bagni

Complesso in vendita

Firenze, Via di Brozzi - Quaracchi

Descrizione annuncio

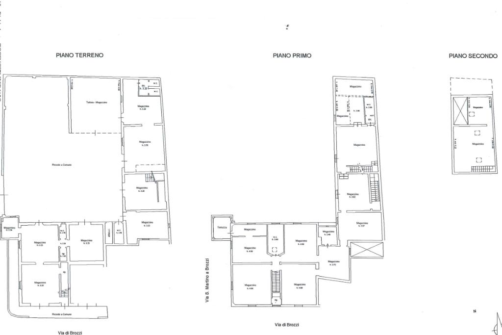
Nella zona di Peretola, precisamente in via di Brozzi, proponiamo una palazzina indipendente, sviluppata su due livelli e composta da più unità immobiliari.

Il complesso in questione è composto da un edificio principale ed alcuni accessori, con attuali molteplici destinazioni d'uso (artigianale, commerciale e depositi), per un totale di 632 mq circa, oltre 300 mq di piazzale privato con accesso carrabile.

La struttura architettonica è valida per cambi di destinazione d'uso sia verso il direzionale che verso l'abitativo (fermo restando le dovute verifiche dei requisiti): pertanto l'immobile si presta bene ad una pluralità di ricerche.

L'immobile è stato completamente ristrutturato di recente e sarà libero da Ottobre 2026.

Tecnocasa immobili per l'impresa è la divisione specializzata nella vendita e nella locazione di negozi, uffici, capannoni e attività commerciali: se intendi vendere, locare o ricercare un immobile del genere contattaci: siamo il punto di riferimento nel settore non abitativo.

Grazie a Kiron SpA, società di mediazione creditizia del Gruppo Tecnocasa, abbiamo convenzioni con decine di istituti bancari italiani e siamo in grado di aiutarti nella ricerca del mutuo più adatto alle tue esigenze.

Mostra tutto

Nelle vicinanze

Trasporto pubblico Trasporto pubblico
Peretola Aeroporto
Peretola Aeroporto
1,6 Km
Guidoni
Guidoni
1,9 Km
Brozzi Di Cocco
Brozzi Di Cocco
170 m
Quaracchi
Quaracchi
180 m
stazione delle Piagge
stazione delle Piagge
1,3 Km
Ricariche auto elettriche Ricariche auto elettriche
Eneldrive (ex SILFI) Pratese
850 m
Eneldrive Primo Settembre
870 m
Firenze Auto di Luca Santicioli | EnelX
940 m
Coop Via Lazio | EnelX
1,3 Km
IKEA Firenze
1,3 Km
Scuole Scuole
Scuola Primaria "Francesco Baracca"
350 m
Istituto Comprensivo "Gandhi"
470 m
Scuola dell'Infanzia "Carlo Lorenzini"
630 m
Università degli Studi di Firenze - Dipartimento di Scienze e Tecnologie Agrarie, Alimentari Ambientali e Forestali - Sede Quaracchi
640 m
Scuola dell'Infanzia e Primaria "Padre Balducci"
760 m
Farmacia Farmacia
S. Maria a Peretola
1,5 Km
Farmacia
2,1 Km
del Barco
2,5 Km
Farmacia Comunale N. 8
2,8 Km
Novoli
2,9 Km
Supermercati Supermercati
Conad
200 m
Mondo Risparmio
1,3 Km
Coop
1,3 Km
Metro Italia Cash And Carry SpA
1,9 Km
Simply Market
2,0 Km
Negozi Negozi
Spaccio Aziendale Salvatore Ferragamo
870 m
Belli e Ribelli
920 m
Prenatal
1,2 Km
Manetti Carni
1,3 Km
Negozi
1,6 Km
Bar Bar
Viper Theatre
840 m
Tenax
850 m
Bar
900 m
Il Manduca
1,1 Km
Beyfin Bar
1,6 Km
Ristoranti Ristoranti
Trattoria da Burde
150 m
Xiang Shun
320 m
Osteria Pronto e via
750 m
Bar Pizza Kebab
780 m
Tomo Sushi
790 m
Mostra tutto

Caratteristiche

Rif.:
60941362
Piano:
2 di 2 (Piano su più livelli)
Posti auto:
4
Balconi:
1
Condizionamento:
Autonomo
Ascensore:
No
Mostra tutto
Prezzo Prezzo
€ 795.000
Rata mutuo Rata mutuo
€ 3.712 / mese
Spese annue Spese annue
€ 150
Proponi il tuo prezzoProponi il tuo prezzo

Altre caratteristiche

Descrizione dei locali
Bagno Con Finestra

Classe Energetica

G
G
G
G
G
G
G
G
G
EP globale non rinnovabile:
175.00 kW h/m² anno
EP globale rinnovabile:
175.00 kW h/m² anno
EP invernale del fabbricato:
EP estiva del fabbricato:
Anno di costruzione:
1950
Riscaldamento:
Autonomo
Tipo impianto:
Ad aria
Tipo alimentazione:
Aria

Ti interessa visionare l'immobile?

Fissa un appuntamento  Fissa un appuntamento

Richiedi informazioni

Clicca su Leggi per aprire l'informativa
* Questi campi sono obbligatori

Calcola il tuo mutuo

Semplice e senza impegno
Anticipo

( % )
Mutuo

( % )

pochi semplici passi

inserisci i tuoi dati
Questionario completato
Grazie per aver richiesto un appuntamento senza impegno con un nostro Consulente del Credito e Assicurativo.

Hai inserito correttamente tutti i dati necessari e a breve riceverai una e-mail con un link da convalidare per inviare i tuoi dati.
Affiliato
Impresa Firenze Nord Srl
Via Reginaldo Giuliani, 55 50141 Firenze (FI)

Il nostro staff


  • Marco Quercioli
    Affiliato

  • Martina Fabiani
    Coordinatrice

  • Matteo Galeotti
    Collaboratore

  • Enea Lorenzo Magni
    Collaboratore

  • Flavia Terenzi
    Collaboratrice

  • Asia Azzolini Di Maggio
    Collaboratrice
Via Reginaldo Giuliani, 55 50141 Firenze (FI)
Zona: Firenze Nord-Campi Bisenzio-Sesto Fiorentino-Calenzano
Mostra su mappa
Orari: lunedì-venerdì 09:00-13:00 e 15:30-20:00 - sabato 09:00-13:00
Affiliato
Impresa Firenze Nord Srl
Via Reginaldo Giuliani, 55 50141 Firenze (FI)

2026 Tecnocasa Franchising S.p.A. - P. IVA 08365160152 - Via Monte Bianco 60/A 20089 Rozzano (MI). Ogni agenzia ha un proprio titolare ed è autonoma. Privacy policy | Policy utilizzo | Cookie policy