Ufficio in affitto

Firenze, Via di Novoli - Novoli
€ 350 / mese
1 locale 1 locale
38 Mq 38 Mq
1 bagno 1 bagno

Ufficio in affitto

Firenze, Via di Novoli - Novoli

Descrizione annuncio

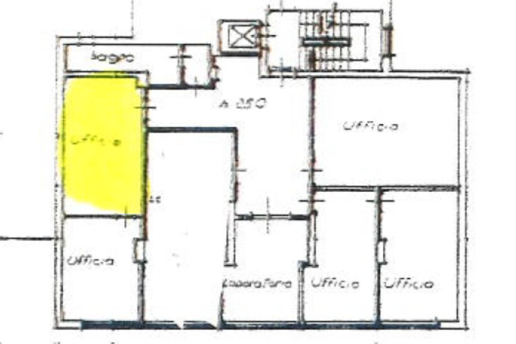
Proponiamo a Firenze, nella zona Novoli, una stanza ad uso ufficio situata all'interno di uno studio professionale multidisciplinare.

L'ufficio si trova in una posizione chiave:

A pochi passi dal Palazzo di Giustizia e dal Polo Universitario.

Eccellenti collegamenti con la Tramvia (Linea T2) verso il centro e l’aeroporto.

Facilità di accesso dall'autostrada e ampie possibilità di parcheggio in zona.

La stanza è ampia, con una dimensione di circa 38 mq, molto luminosa grazie alla doppia esposizione e viene consegnata tinteggiata.

Le spese condominiali, pari ad euro 60,00 mensili, comprendono le spese di riscaldamento e le spese di acqua e corrente per le aree comuni.

Possibilità di unire un posto auto ad euro 90,00 mensili aggiuntivi.

DISCLAIMER - SCARICO DI RESPONSABILITA'

Il presente annuncio e le informazioni ivi contenute non costituiscono vincolo contrattuale. Gli annunci, nonostante la nostra accuratezza, possono presentare inesattezze, errori, omissioni e/o altre incongruenze dovute a software, gestionali, intelligenza artificiale e altre dinamiche di inserimento e lettura dati. Le fotografie potrebbero essere immagini di repertorio, modificate dall'intelligenza artificiale o non rappresentative della realtà.

Mostra tutto

Nelle vicinanze

Trasporto pubblico Trasporto pubblico
stazione di Firenze Rifredi
stazione di Firenze Rifredi
1,3 Km
stazione di Firenze Porta al Prato
stazione di Firenze Porta al Prato
1,5 Km
San Donato - Università
San Donato - Università
130 m
Novoli - Regione Toscana
Novoli - Regione Toscana
440 m
Polo Scienze Ragghianti
Polo Scienze Ragghianti
70 m
Ricariche auto elettriche Ricariche auto elettriche
Eneldrive (ex SILFI) Galliano
480 m
Eneldrive (ex SILFI) Veracini
530 m
Eneldrive (ex SILFI) Marignolli
590 m
Eneldrive (ex SILFI) dell'Elba
690 m
Coop Novoli | EnelX
770 m
Scuole Scuole
Istituto Superiore per servizi del Turismo, Socio Sanitari "Sassetti Peruzzi"
270 m
Scuole
290 m
Polo delle Scienze Sociali - Edificio D15
330 m
Scuola Secondaria di Primo Grado "Calamandrei"
330 m
Polo delle Scienze Sociali - Edificio D6
400 m
Farmacia Farmacia
Parafarmacia Esselunga
420 m
SS. Annunziata
430 m
Puccini
480 m
San Marco
490 m
Novoli
960 m
Ospedali Ospedali
Poliambulatorio Morgagni (CUP)
1,5 Km
Ospedali
2,1 Km
C.T.O.
2,1 Km
Centro traumatologico ortopedico - CTO
2,1 Km
Unità spinale
2,1 Km
Supermercati Supermercati
Coop
80 m
Esselunga
410 m
Esselunga via galliano
560 m
VIVO
780 m
Conad City
780 m
Negozi Negozi
Forno del Messer Dante
430 m
Fiorenza
520 m
Minù
520 m
Negozi
550 m
Pane Amore e Fantasia
560 m
Bar Bar
Bar One
290 m
Gianni Nobile
300 m
Polo delle Scienze Sociali - Bar
330 m
Strizzi Garden
350 m
Bar I' Gatto Bianco
420 m
Ristoranti Ristoranti
Sushiko
70 m
Bamboo
160 m
Bamboo Sushi Wok
260 m
L'Oro del Cilento
280 m
La Meta
420 m
Mostra tutto

Caratteristiche

Rif.:
61177732
Piano:
1 con ascensore (Piano alto)
Condizionamento:
Assente
Ascensore:
Riscaldamento:
Centralizzato
Giardino:
Condominiale
Mostra tutto
Prezzo Prezzo
€ 350 / mese
Spese annue Spese annue
€ 720

Altre caratteristiche

Descrizione dei locali
Bagno Con Finestra

Classe Energetica

G
G
G
G
G
G
G
G
G
EP globale non rinnovabile:
175.00 kW h/m² anno
EP globale rinnovabile:
175.00 kW h/m² anno
EP invernale del fabbricato:
EP estiva del fabbricato:
Anno di costruzione:
1967
Riscaldamento:
Centralizzato
Tipo impianto:
A radiatori
Tipo alimentazione:
Metano

Ti interessa visionare l'immobile?

Fissa un appuntamento  Fissa un appuntamento

Richiedi informazioni

Clicca su Leggi per aprire l'informativa
* Questi campi sono obbligatori
Affiliato
Impresa Firenze Nord Srl
Via Reginaldo Giuliani, 55 50141 Firenze (FI)

Il nostro staff


  • Marco Quercioli
    Affiliato

  • Martina Fabiani
    Coordinatrice

  • Matteo Galeotti
    Collaboratore

  • Enea Lorenzo Magni
    Collaboratore

  • Flavia Terenzi
    Collaboratrice

  • Asia Azzolini Di Maggio
    Collaboratrice
Via Reginaldo Giuliani, 55 50141 Firenze (FI)
Zona: Firenze Nord-Campi Bisenzio-Sesto Fiorentino-Calenzano
Mostra su mappa
Orari: lunedì-venerdì 09:00-13:00 e 15:30-20:00 - sabato 09:00-13:00
Affiliato
Impresa Firenze Nord Srl
Via Reginaldo Giuliani, 55 50141 Firenze (FI)

2026 Tecnocasa Franchising S.p.A. - P. IVA 08365160152 - Via Monte Bianco 60/A 20089 Rozzano (MI). Ogni agenzia ha un proprio titolare ed è autonoma. Privacy policy | Policy utilizzo | Cookie policy