Ufficio in vendita

Sesto Fiorentino, Viale L.Ariosto
€ 250.000
2 locali 2 locali
305 Mq 305 Mq
3 bagni 3 bagni

Ufficio in vendita

Sesto Fiorentino, Viale L.Ariosto

Questo immobile dispone di soluzioni frazionate

Descrizione annuncio

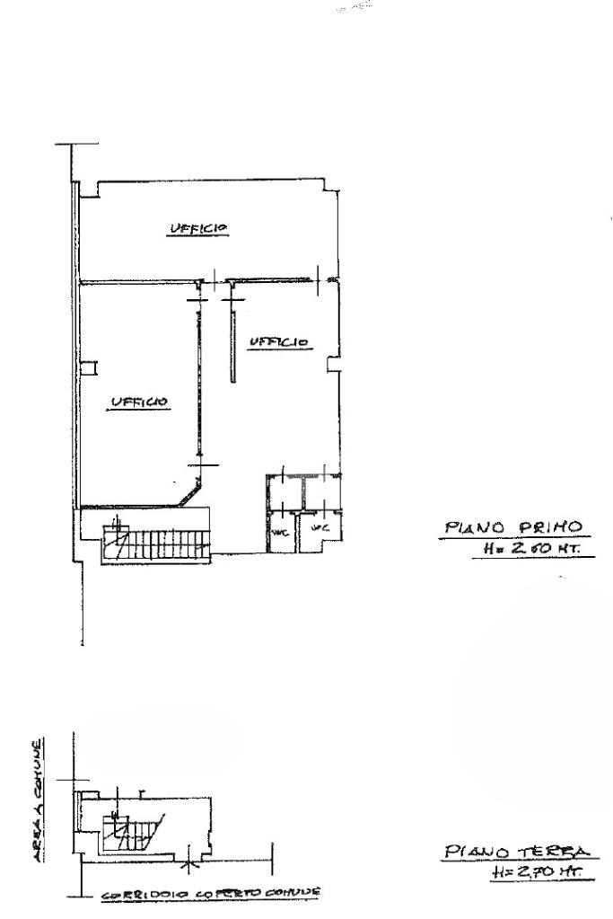
A Sesto Fiorentino, in viale Ludovico Ariosto, proponiamo un immobile composto da magazzino al piano terreno e ufficio al primo piano, collegati comodamente da una scala interna.

Si tratta di uno spazio funzionale e versatile, ideale per chi ha bisogno di unire l'area operativa e di deposito con la zona direzionale in un’unica soluzione.

La superficie complessiva è di 284 mq, suddivisa in 146 mq di uffici e 138 mq di magazzino.
A completare la proprietà troviamo un piazzale privato di 210 mq, perfetto per parcheggio, manovra o attività di carico e scarico.

Viale Ludovico Ariosto è una via di grande scorrimento e di forte passaggio, situata a breve distanza dalla stazione ferroviaria di Sesto Fiorentino, con ottimi collegamenti verso Firenze e i comuni limitrofi che rendono la posizione strategica.

DISCLAIMER - SCARICO DI RESPONSABILITA'

Il presente annuncio e le informazioni ivi contenute non costituiscono vincolo contrattuale. Gli annunci, nonostante la nostra accuratezza, possono presentare inesattezze, errori, omissioni e/o altre incongruenze dovute a software, gestionali, intelligenza artificiale e altre dinamiche di inserimento e lettura dati. Le fotografie potrebbero essere immagini di repertorio, modificate dall'intelligenza artificiale o non rappresentative della realtà.

Mostra tutto

Nelle vicinanze

Trasporto pubblico Trasporto pubblico
stazione di Sesto Fiorentino
stazione di Sesto Fiorentino
100 m
stazione di Firenze Castello
stazione di Firenze Castello
2,7 Km
Sesto FS
Sesto FS
170 m
Querciola
Querciola
170 m
stazione di Il Neto
stazione di Il Neto
900 m
Ricariche auto elettriche Ricariche auto elettriche
Estra Stazione FS Sesto Fiorentino
130 m
Estra Comune di Sesto Fiorentino
690 m
Estra Piazza del Mercato Sesto Fiorentino
830 m
Calenzano A.S.D. Settimello | EnelX
1,6 Km
Officina Bi Auto | EnelX
1,7 Km
Scuole Scuole
Scuole Pubbliche Media Inferiore Cavalcanti
350 m
Scuola Elementare De Amicis
870 m
Scuole
890 m
Ist. Sec. di I grado "G.Pescetti"
1,0 Km
Istituto Statale d'Arte
1,1 Km
Farmacia Farmacia
Farmacia Comunale 5
580 m
Farmacia Comunale Notturna
740 m
Farmacia Di Rimaggio
750 m
Farmacia Comunale 1
760 m
Farmacia Comunale 7
820 m
Ospedali Ospedali
Ospedali
750 m
Azienda Usl 10 Di Firenze
1,2 Km
Villa Donatello
2,8 Km
Supermercati Supermercati
Coop
690 m
Vivo
850 m
Unicoop Neto
1,1 Km
Penny Market
1,8 Km
Esselunga
1,9 Km
Negozi Negozi
Forno Conti
460 m
Pane Amore E..
720 m
Negozi
950 m
Starbene Senza Glutine
1,6 Km
Fratelli Battaglia snc
2,5 Km
Bar Bar
Bar Vannino
1,1 Km
Nonsolobar
1,5 Km
I'Cussino
1,6 Km
Asd Factory
2,8 Km
Ristoranti Ristoranti
Carlo
320 m
La Pianella
470 m
Sesto Senso
650 m
Ristorante Bar Pizzeria Sarzolo Turano Snc Di Turano Raffaele & C.
670 m
Mamma che fame
770 m
Mostra tutto

Caratteristiche

Rif.:
61153411
Piano:
1 di 2 (Piano su più livelli)
Condizionamento:
Assente
Ascensore:
No
Riscaldamento:
Autonomo
Libero:
No
Mostra tutto
Prezzo Prezzo
€ 250.000
Rata mutuo Rata mutuo
€ 1.167 / mese
Spese annue Spese annue
€ 1.700
Proponi il tuo prezzoProponi il tuo prezzo

Altre caratteristiche

Descrizione dei locali
Bagno Cieco

Classe Energetica

G
G
G
G
G
G
G
G
G
EP globale non rinnovabile:
175.00 kW h/m² anno
EP globale rinnovabile:
175.00 kW h/m² anno
EP invernale del fabbricato:
EP estiva del fabbricato:
Anno di costruzione:
1980
Riscaldamento:
Autonomo
Tipo impianto:
A radiatori
Tipo alimentazione:
Altro

Ti interessa visionare l'immobile?

Fissa un appuntamento  Fissa un appuntamento

Richiedi informazioni

Clicca su Leggi per aprire l'informativa
* Questi campi sono obbligatori

Calcola il tuo mutuo

Semplice e senza impegno
Anticipo

( % )
Mutuo

( % )

pochi semplici passi

inserisci i tuoi dati
Questionario completato
Grazie per aver richiesto un appuntamento senza impegno con un nostro Consulente del Credito e Assicurativo.

Hai inserito correttamente tutti i dati necessari e a breve riceverai una e-mail con un link da convalidare per inviare i tuoi dati.
Affiliato
Impresa Firenze Nord Srl
Via Reginaldo Giuliani, 55 50141 Firenze (FI)

Il nostro staff


  • Marco Quercioli
    Affiliato

  • Martina Fabiani
    Coordinatrice

  • Matteo Galeotti
    Collaboratore

  • Enea Lorenzo Magni
    Collaboratore

  • Flavia Terenzi
    Collaboratrice

  • Asia Azzolini Di Maggio
    Collaboratrice
Via Reginaldo Giuliani, 55 50141 Firenze (FI)
Zona: Firenze Nord-Campi Bisenzio-Sesto Fiorentino-Calenzano
Mostra su mappa
Orari: lunedì-venerdì 09:00-13:00 e 15:30-20:00 - sabato 09:00-13:00
Affiliato
Impresa Firenze Nord Srl
Via Reginaldo Giuliani, 55 50141 Firenze (FI)

2026 Tecnocasa Franchising S.p.A. - P. IVA 08365160152 - Via Monte Bianco 60/A 20089 Rozzano (MI). Ogni agenzia ha un proprio titolare ed è autonoma. Privacy policy | Policy utilizzo | Cookie policy